top of page

Rogerkors og ågekors

WH-Produksjon produserer rogerkors og ågekors samt annet tilbehør til kummer. Vi har lang erfaring, mange fornøyde kunder og tilbyr rogerkors og ågekors til svært konkurransedyktige priser.

Til nedlasting

ågekors-sentrisk.jpg
ågekors-eksentrisk-rogerkors.jpg
tilbehør-kummer-ågekors-1.jpg
tilbehør-kummer-ågekors-1.jpg
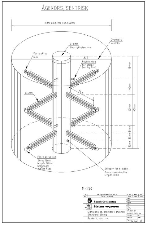
Figur 2-51: Ågekors (Sentrisk for normal kum + eksentrisk med lav kum).
Ta kontakt for et godt pristilbud

Kontakt oss

Ruud Gård, Rudsveien 119, 2040 Kløfta
Tlf: 90 53 94 57
e-post: post@wh-produksjon.no
Org.nr. 969287137

bottom of page